Обади се: +359 32 321 971
2-стаен Пловдив Въстанически 61 кв.м

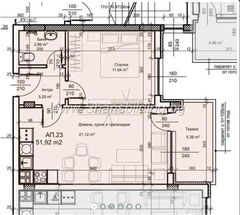
2-стаен Пловдив Въстанически 61 кв.м

€ 65 990,00
  • Оферта №: 500 938
  • Тип на имота: Апартамент - 2-стаен
  • Тип на офертата: Продажба
  • Площ: 61,00 кв.м.
  • Етаж: 2 от 6
  • Град: Пловдив
  • Район: Въстанически (Сточна гара)
Монолит
Асансьор
Паркомясто
Саниран

Описание на имота

Продаваме апартамент, разположен в малка, новострояща се сграда с асансьор и луксозни общи части. В близост до магазин Била, Централна гара и Сточна гара.
Разпределение: всекидневна с кухненски кът изложение север, една спалня - юг, баня с тоалетна, входно антре и тераса, голяма изба.
Възможност за отделно закупуване на паркомясто .

image

Връзка с брокера

  • Брокер Въстанически
  • 0895 55 59 12

Харесва ли ви тази оферта? Попитайте ни за нея!