Обади се: +359 32 321 971
2-етажна обл.Пловдив с.Радиново 246 кв.м

2-етажна обл.Пловдив с.Радиново 246 кв.м

  • Оферта №: 300 389
  • Тип на имота: Къща - 2-етажна
  • Тип на офертата: Продажба
  • Площ: 246,00 кв.м.
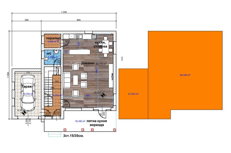
  • Етаж: 1 от 2
  • Град: обл.Пловдив
  • Район: с.Радиново
монолит
гараж
паркомясто
двор
канализация

Описание на имота

Предлагаме ви НОВОПОСТРОЕНА ЛУКСОЗНА КЪЩА на два етажа с разчупена и модернистична визия, гараж и БАСЕЙН С ФОРМА НА ЦИГУЛКА с джакузи. Сградата се продава заедно с парцела, който е с площ от 672 кв.м. РЗП на сградата е 246 кв.м от които 36 кв.м гараж за две коли. Имотът разполага и с второстепенна сграда - складово помещение с площ 22 кв. м. Къщата се намира в с. Радиново, обл. Пловдив /на 3 км. от гр. Пловдив/ в затворен комплекс „ТЕРЕС“, присъединена е към EVN, ВиК и газификация, канализация, дренажна и поливна система, ограда, вертикална планировка и излаз на асфалтов път. /Възможност за закупуване на съседния парцел./
Разпределение:

- първи етаж площ 104,15 кв.м., състоящ се от просторна дневна с кухненски кът с излаз на панорамна веранда, перално помещение и санитарен възел;

- втори етаж с площ от 106,00 кв.м., състоящ се от основна родителска спалня с отделен санитарен възел и гардеробна, две спални с тераса и санитарен възел.

Строежът е завършен /акт 15/ и строителството е реализирано с висококачествени материали: тухли wienenberger, покривна система TONDACH с 30 години гаранция, дограма TROCAL - 6 kam.

Дизайн: Луксозният имот е проектиран с цел да създаде удобство, уют и спокойствие, като същевременно дава възможност за много различни дизайнерски решения за интериорното завършване. Дворната част е покрита с настилка от павета SEMMELROCK, а около басеина, с Decking.

Къщата отговаря на всички съвременни стандарти за строителство, затвореният комплекс Терес, в който се намира имотът, предлага регулиран достъп, детска площадка, целогодишна поддръжка. Мястото е спокойно и живописно, същевременно комуникативно на 10 мин път от Пловдив и лесна връзка с АМ Тракия.

Басейнът е отопляем, което дава възможност да се ползва целогодишно. Също така е инсталирана сонда за вода, която може да се ползва както за поливната система, така и за басейна.

image

Връзка с брокера

Харесва ли ви тази оферта? Попитайте ни за нея!