Обади се: +359 32 321 971
2-стаен Пловдив Въстанически 85 кв.м

2-стаен Пловдив Въстанически 85 кв.м

€ 96 000,00
  • Оферта №: 500 125
  • Тип на имота: Апартамент - 2-стаен
  • Тип на офертата: Продажба
  • Площ: 85,00 кв.м.
  • Етаж: 1 от 4
  • Град: Пловдив
  • Район: Въстанически (Беломорски)
Монолит
Асансьор
Лукс
Паркомясто
Саниран

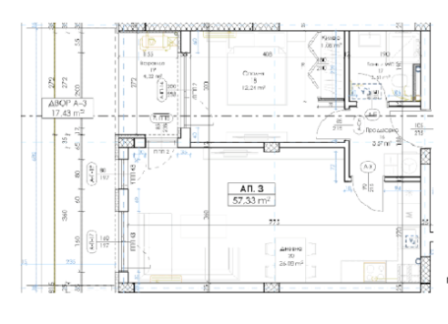
Описание на имота

Малка бутикова ЛУКС кооперация пред Акт 16, в близост до централния път.
Състои се от спалня, хол с трапезария и кухненски бокс заедно със Самостоятелен двор от 25 кв.м.
Огледи по всяко време.
Разполагаме и с апартаменти с 2 спални.
Имотите могат да се закупят с ипотечен кредит. Представители сме на най големия кредитен консултант, Кредит Център.
Работим с всички водещи банки, при най добри условия. Запиши си час - Безплатни консултации!

image

Връзка с брокера

  • Брокер Въстанически
  • 0895 55 59 12

Харесва ли ви тази оферта? Попитайте ни за нея!